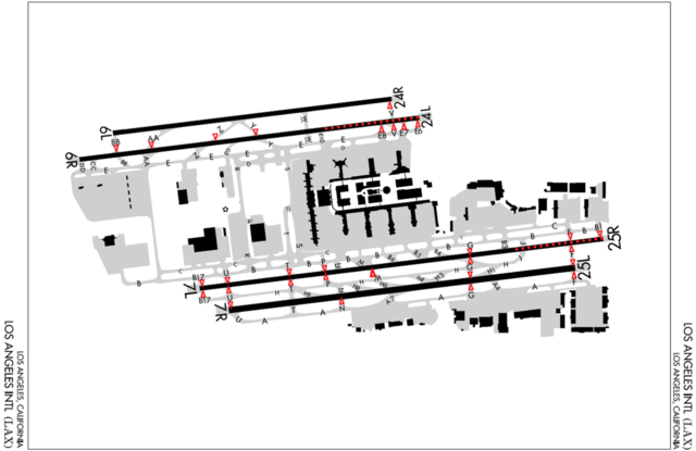
Los Angeles International Airport (LAX) Runway Status Lights (RWSLs)
LAX Runway Status Lights (RWSLs) are operating. RWSLs are red in−pavement lights that serve as warning lights on runways and taxiways indicating that it is unsafe to enter, cross, or begin takeoff on a runway when illuminated.
Note: RWSLs indicate a runway’s status only, they do not indicate clearance. Pilots and vehicle operators are required to receive a clearance from air traffic control before proceeding.
Runway Status Lights at Los Angeles (LAX)
Takeoff Hold Lights (THLs)
-
Runway 24L (North Complex)
-
Runway 25R (South Complex)
Runway Entrance Lights (RELs)
South Complex:
-
Taxiway B1 (North of Runway 25R)
-
Taxiway F (North and South of Runways 25L/25R)
-
Taxiway G (North and South of Runways 25L/25R)
-
Taxiway M (South of Runway 25R)
-
Taxiway N (South of Runway 25L)
-
Taxiway P (North and South of Runway 25R)
-
Taxiway T (North and South of Runway 25R)
-
Taxiway U (North and South of Runway 25R and North of Runway 25L)
-
Taxiway B17 (North and South of Runway 25R)
North Complex:
-
Taxiway E6 (South of Runway 24L)
-
Taxiway E7 (South of Runway 24L)
-
Taxiway E8 (South of Runway 24L)
-
Taxiway V (South of Runway 24R)
-
Taxiway V (South of Runway 24L)
-
Taxiway Y (North of Runway 24L)
-
Taxiway Z (North of Runway 24L)
-
Taxiway AA (North of Runway 24L)
-
Taxiway BB (North of Runway 24L)
For more information, visit the website: http://www.faa/gov/air_traffic/technology/rwsl/
(AJV-W21, revision 2/1/2018)